Indipendente 70 mq piano terra a 100 mt dal mare

  • €168.000
Via dei Gelsomini, Torre Santa Sabina, Carovigno BR, Italia
In vendita Nuova costruzione

Indipendente 70 mq piano terra a 100 mt dal mare

Via dei Gelsomini, Torre Santa Sabina, Carovigno BR, Italia
  • €168.000

Riepilogo

ID: 10079
  • Case, Torre Santa sabina
  • Tipologia
  • 2
  • Camere da letto
  • 1
  • Bagno
  • 70
  • mq

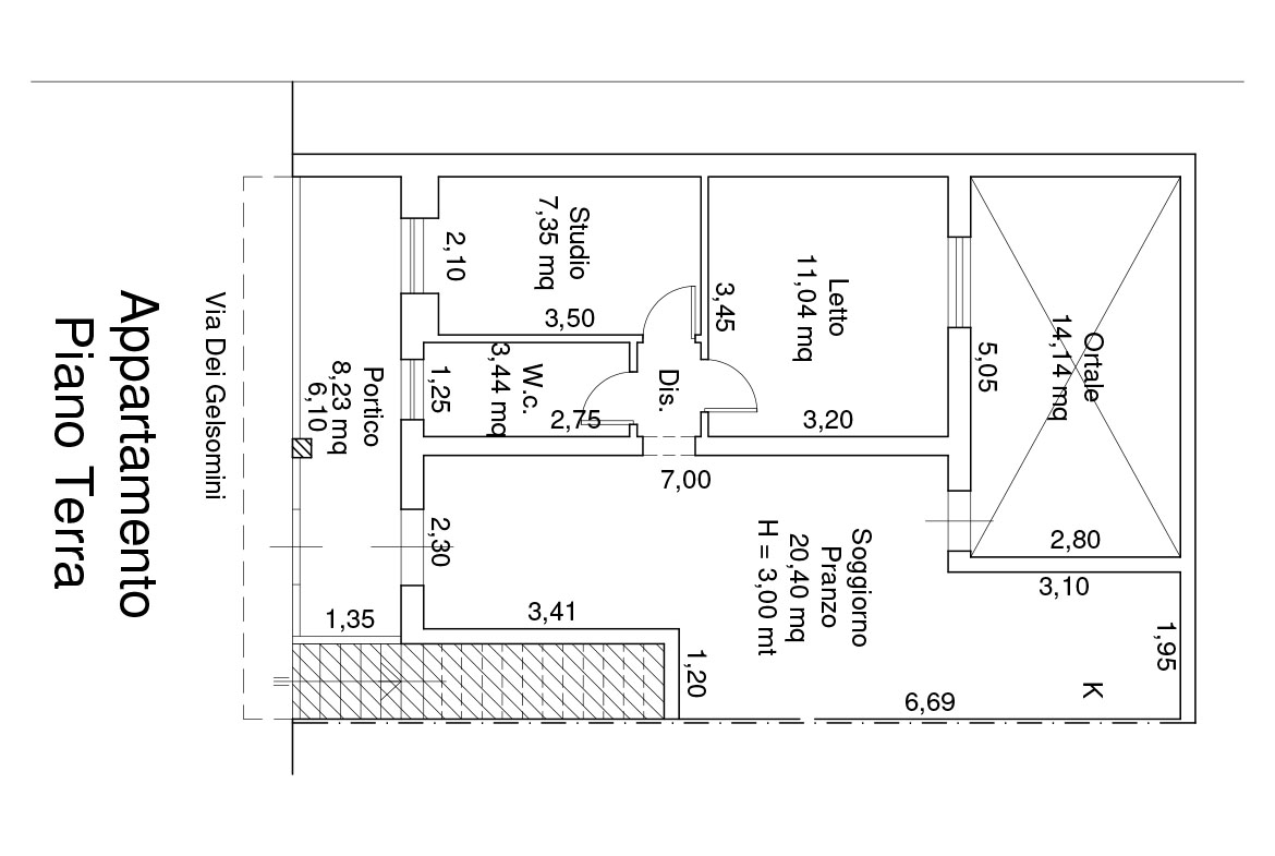
Planimetrie

image

Description:

Descrizione

Nella località di Torre Santa Sabina, Carovigno, a soli 100 metri dal mare, proponiamo in vendita una comoda abitazione al piano terra, completamente da ristrutturare ma con prezzo chiavi in mano, comprensivo di lavori e finiture personalizzabili. La casa offre spazi ampi e funzionali: grande soggiorno con cucina a vista, due camere da letto, un bagno e un caratteristico ortale privato, perfetto per vivere momenti di relax all’aperto. Ideale come casa vacanze, prima abitazione o investimento, questa soluzione unisce posizione strategica, comodità e la possibilità di avere una casa su misura, pronta per essere abitata. L’abitazione sarà dotata di ottime rifiniture e impianti tecnologici all’avanguardia come l’impianto di riscaldamento/raffrescamento costituito da ventilconvettori e pompa di calore in Classe A avente un basso consumo elettrico ed un’alta efficienza energetica. Inoltre sarà dotato di tapparelle elettriche, portoncino blindato Euro 4, infissi in pvc ad alte prestazioni con vetro-camera a gas argon.

Torre Santa Sabina è una località marina situata nel comune di Carovigno, in provincia di Brindisi. Si trova lungo la costa adriatica, nel Salento, nel cuore della Puglia, nel Nord Salento, in prossimità della Riserva Naturale di Torre Guaceto, dista da Ostuni 7,2 km, San Michele Salentino 8,7 km, Ceglie Messapica 13,8 km, Cisternino 19,9 km, Francavilla Fontana 20,6 km, Mesagne, 21 km, Oria 23,5 km, Fasano 28,7 km, Grottaglie (TA) 25,4 km, Martina Franca (TA) 27,1 km, Locorotondo (Ba) 28,2 km.

Località: Torre Santa Sabina di Carovigno (Brindisi) – Via dei Gelsomini.
Cod. 10079

  • Indirizzo Via dei Gelsomini, Torre Santa Sabina, Carovigno BR, Italia
  • CAP 72012

Dettagli

Updated on Dicembre 1, 2025 at 10:32 am
  • ID: 10079
  • Prezzo: €168.000
  • Superficie: 70 mq
  • Camere da letto: 2
  • Tipologia: Case, Torre Santa sabina
  • Lotto: 70 mq
  • Bagno: 1
  • Stato: In vendita, Nuova costruzione

Informazioni aggiuntive

  • Da ristrutturare: SI
ATTENZIONE: i prezzi e le dimensioni potrebbero cambiare in fase di avanzamento lavori.

Compare listings

Compare
3040imprese
  • 3040imprese