Locale commerciale 70 mq in via Santa Sabina

  • €137.000
Via Santa Sabina Carovigno
In vendita

Locale commerciale 70 mq in via Santa Sabina

Via Santa Sabina Carovigno
  • €137.000

Riepilogo

ID: 10094
  • Locali commerciali
  • Tipologia
  • 1
  • Bagno
  • 70
  • mq

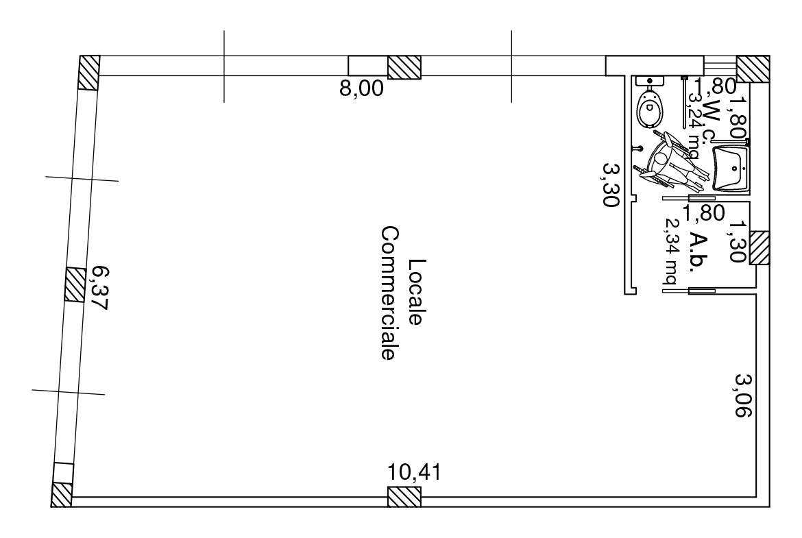
Planimetrie

image

Description:

Descrizione

Proponiamo la vendita di un locale commerciale di 70,00 mq situato in posizione angolare con due ampie vetrine che garantiscono un’ottima visibilità e una grande luminosità naturale. Il negozio si trova in una zona centrale di Carovigno, caratterizzata da un intenso passaggio pedonale, ideale per ogni tipo di attività commerciale. All’interno è presente un bagno a norma di legge, e gli spazi interni sono ben distribuiti per consentire diverse soluzioni di utilizzo. Grazie alla posizione strategica e alla presenza delle vetrine, il locale è particolarmente adatto a chi cerca un punto vendita con alta visibilità e facile accesso. Il prezzo si riferisce esclusivamente alla vendita del locale, mentre l’attività in corso di abbigliamento è disponibile separatamente, con possibilità di acquisirla a parte per chi fosse interessato. È un’ottima opportunità per chi desidera investire o avviare una nuova attività commerciale in un contesto dinamico e frequentato.

Carovigno è situata a 5 km dalla costa Adriatica e 28 km dal suo capoluogo di provincia, Brindisi; è un bellissimo borgo in collina che si affaccia sul mare, tutto da visitare, si trova nel cuore della Puglia, nel Nord Salento, in prossimità della Riserva Naturale di Torre Guaceto, dista da Ostuni 7,2 km, San Michele Salentino 8,7 km, Ceglie Messapica 13,8 km, Cisternino 19,9 km, Francavilla Fontana 20,6 km, Mesagne, 21 km, Oria 23,5 km, Fasano 28,7 km, Grottaglie (TA) 25,4 km, Martina Franca (TA) 27,1 km, Locorotondo (Ba) 28,2 km.

Località: Carovigno (Brindisi) – Via Santa Sabina.

Cod. 10094

  • Indirizzo Via Santa Sabina Carovigno
  • Città Torre Santa Sabina
  • CAP 72012

Dettagli

Updated on Dicembre 1, 2025 at 10:28 am
  • ID: 10094
  • Prezzo: €137.000
  • Superficie: 70 mq
  • Tipologia: Locali commerciali
  • Lotto: 70 mq
  • Bagno: 1
  • Stato: In vendita

Informazioni aggiuntive

  • Pronta Consegna: Si
ATTENZIONE: i prezzi e le dimensioni potrebbero cambiare in fase di avanzamento lavori.

Compare listings

Compare
3040imprese
  • 3040imprese