Appartamento 90 mq piano terra – BLOCCO B – PALAZZO SCRITTORI

  • €105.000
Via T. Campanella angolo Via L. Capuana Carovigno
In vendita Nuova costruzione

Appartamento 90 mq piano terra – BLOCCO B – PALAZZO SCRITTORI

Via T. Campanella angolo Via L. Capuana Carovigno
  • €105.000

Riepilogo

ID: 10100
  • Case
  • Tipologia
  • 2
  • Camere da letto
  • 1
  • Bagno
  • 90
  • mq

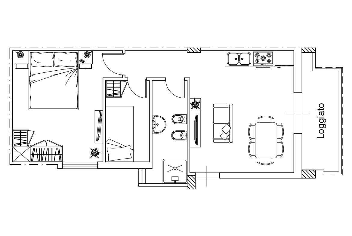
Planimetrie

image

Description:

Descrizione

Appartamento posto al piano terra con ingresso indipendente, della superficie lorda di circa 90,00 mq, facente parte del nuovo complesso edilizio in costruzione di 18 appartamenti su 3 piani fuori terra. Il nuovo complesso di appartamenti in Via T. Campanella angolo Via L. Capuana, viene realizzato in una delle zone più interessanti del tessuto urbano di Carovigno, posta a pochi passi da ogni tipo di servizio e ricca di ogni primario ausilio. L’appartamento internamente si compone da un soggiorno-pranzo con cucina open-space che si collega con pozzo luce esterno, un bagno, una camera da letto matrimoniale, una camera da letto singola e un ortale di circa 20 mq. Dotato di ottime rifiniture e impianti tecnologici all’avanguardia come l’impianto di riscaldamento/raffrescamento costituito da ventilconvettori e pompa di calore in Classe A avente un basso consumo elettrico ed un’alta efficienza energetica. Inoltre sarà dotato di tapparelle elettriche, portoncino blindato Euro 4, infissi in pvc ad alte prestazioni con vetro-camera a gas argon.

Possibilità di personalizzazione interna.
Possibilità di acquisto box-auto a parte.

Carovigno è situata a 5 km dalla costa Adriatica e 28 km dal suo capoluogo di provincia, Brindisi; è un bellissimo borgo in collina che si affaccia sul mare, tutto da visitare, si trova nel cuore della Puglia, nel Nord Salento, in prossimità della Riserva Naturale di Torre Guaceto, dista da Ostuni 7,2 km, San Michele Salentino 8,7 km, Ceglie Messapica 13,8 km, Cisternino 19,9 km, Francavilla Fontana 20,6 km, Mesagne, 21 km, Oria 23,5 km, Fasano 28,7 km, Grottaglie (TA) 25,4 km, Martina Franca (TA) 27,1 km, Locorotondo (Ba) 28,2 km.

Località: Carovigno (Brindisi) – Via T. Campanella angolo Via L. Capuana.

Cod. 10100

  • Indirizzo Via T. Campanella angolo Via L. Capuana Carovigno
  • CAP 72012

Dettagli

Updated on Settembre 12, 2025 at 3:56 pm
  • ID: 10100
  • Prezzo: €105.000
  • Superficie: 90 mq
  • Camere da letto: 2
  • Tipologia: Case
  • Lotto: 90 mq
  • Bagno: 1
  • Stato: In vendita, Nuova costruzione

Informazioni aggiuntive

  • In fase di realizzazione: Si
  • Nuova Costruzione: Si
ATTENZIONE: i prezzi e le dimensioni potrebbero cambiare in fase di avanzamento lavori.

Compare listings

Compare
3040imprese
  • 3040imprese